Sivusto ei tue käyttämääsi selainta. Suosittelemme selaimen päivittämistä uudempaan versioon.

2015 Valmisteluja

17.1.2015
Osuuskunta Pöllökartano esittäytyi 17.1.2015 suurelle yleisölle, Väkeä ja asiasta kiinnostuneita oli salin täydeltä. Osuuskunta sai heti uusia jäseniä. Kuvassa Liebeskind-visio pöllökartanon tapaan: pesuhuoneen lattian alta kaivettuja tiiliskiviä.

Ei automaattista vaihtoehtoista tekstiä saatavilla.

29.1.2015
Talo ostettiin yhdellä eurolla Pälkäneen kunnalta.

 Kaupan kunniaksi kohotettiin maljat Pytingin valtuustosalissa.

8.4.2015
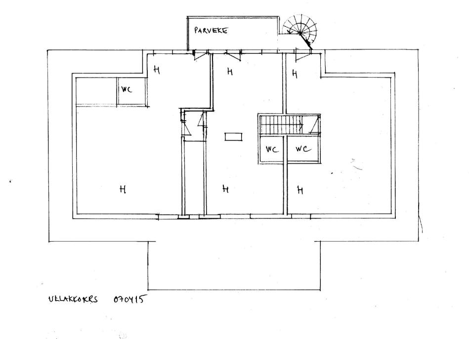
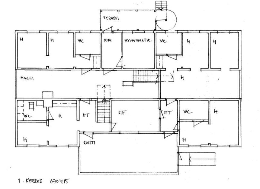
Pohjakuvat alkavat hahmottua.

18.6.2015
Rakennuslupahakemus jätettiin kunnalle.

1.7.2015
Rakennuskupa saatiin.

27.7.2015
Alkumetreillä...

 

28.7.2015
Yläkerran päätyullakolle avattiin kulku.

15.8.2015
Talkoolaiset kävivät taiteellisiksi

15.8.2015
Talon alapohja on saatava viipymättä työ alle.

18.8.2015
Betoniportaat pois odottamaan myöhempääkäyttöä puutarhassa.

2.11.2015
Pöllökartan sai logon. Sen piirsi Oili Kokkonen.

9.11.2015
Työmaa sai sähkövirtaa.

11.11.2015
Työmaalle saatiin koppi.

15.12.2015
Rakennustöiden aloitustunnelmissa.
Kuvassa vasemmalta oikealle Veikko Jokela, Perttu, Kimmo Kallioinen, Harri Metsälä, Matti Kallioinen.
Työt alkavat yläkerran ja välipohjan purkutöillä.

17.12.2015
Pintamaita pois, kallio näkyviin.

31.12.2015
Kurkistus talon pohjan alle.

Yläkerran purkua aloitettiin jo joulukuun puolella.

 Katse vielä vintille.