Sivusto ei tue käyttämääsi selainta. Suosittelemme selaimen päivittämistä uudempaan versioon.

2014 Osuuskunta aloitti

Osuuskunta Pöllökartano perustettiin 11.1.2014.

SHL 18.2.2014:
Luopioisten Kukkiakodon vieressä sijaitseva Pöllölä haluttaisiin remontoida vuokra-asunnoiksi.

Osuuskunta Pöllökartano on tarjoutunut ostamaan rakennuksen, joka kuuluu Pälkäneen säästöpaketissa myytävien kohteiden listalle. Torstaina kokoontuva kunnanhallitus tekee periaatepäätöksen siitä, voitaisiinko kauppa tehdä muodollisesta summasta.

Pöllölä sijaitsee entisen vanhainkodin mailla. Pöllölän 2500 neliön tontista on tarkoitus tehdä pitkäaikainen, esimerkiksi 50 vuoden vuokrasopimus.

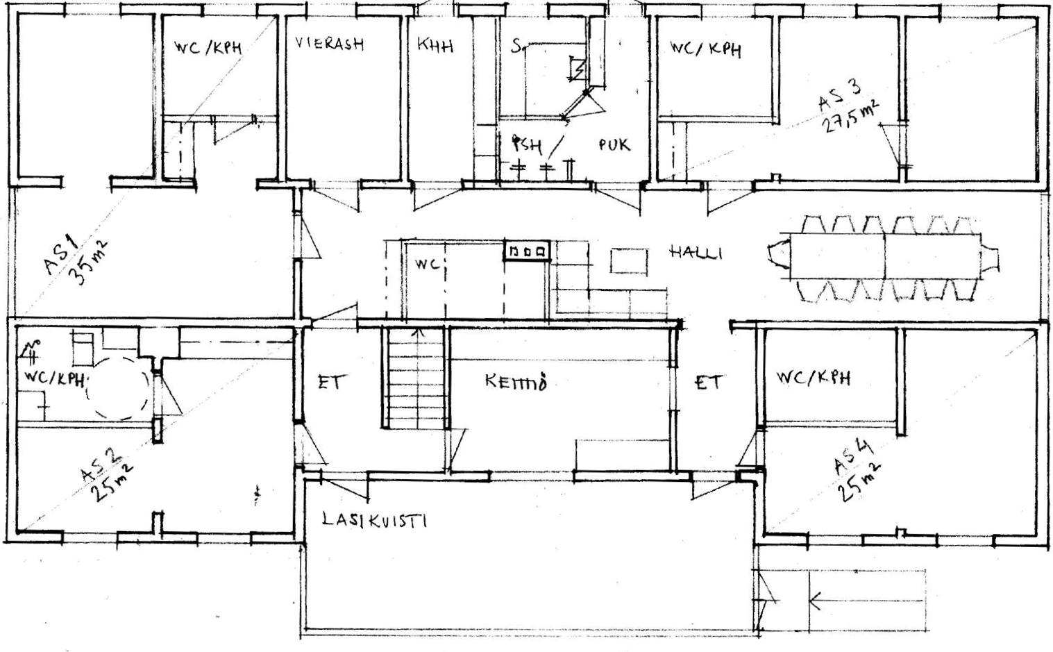
Puurakentamisen asiantuntija Harri Metsälä on tutkinut rakennusta ja laatinut alustavia suunnitelmia siitä, miten siihen saataisiin sopimaan 7–8 asuntoa, joiden koko vaihtelisi 35 ja 50 neliömetrin välillä.

Pöllölässä on aikanaan asunut mielenterveyspotilaita. Rakennus on pinnoiltaan kehnossa kunnossa, mutta sen hirsirakenteet vaikuttavat terveiltä.

Palveluasunnoiksi remontoidun vanhainkodin pihapiirissä sijaitsevaan rakennukseen saataisiin idyllisiä ja yhteisöllisiä vuokra-asuntoja. Paikka olisi ihanteellinen myös senioriasumiselle, sillä ikääntyvät asukkaat saisivat tarvitsemansa palvelut aivan vierestä.

 

Viikonlopun 22.-23.3.2014 siivoustalkoot

 

30.4.2014
Harrilta pohjaluonnoksia

 

Ma 11.8.2014 Tontin rajoilla
Kartoitettiin ja merkittiin puutikuin Pöllökartanorakennuksen tontin rajoja.
Mukana Janita Koivisto ja Aleksi Saukkoriipi Pälkäneen kunnasta sekä Päivi, Mirjami, Asko, Perttu ja Seppo. 

 

 

24.11.2014
Joulunavaustunnelmissa